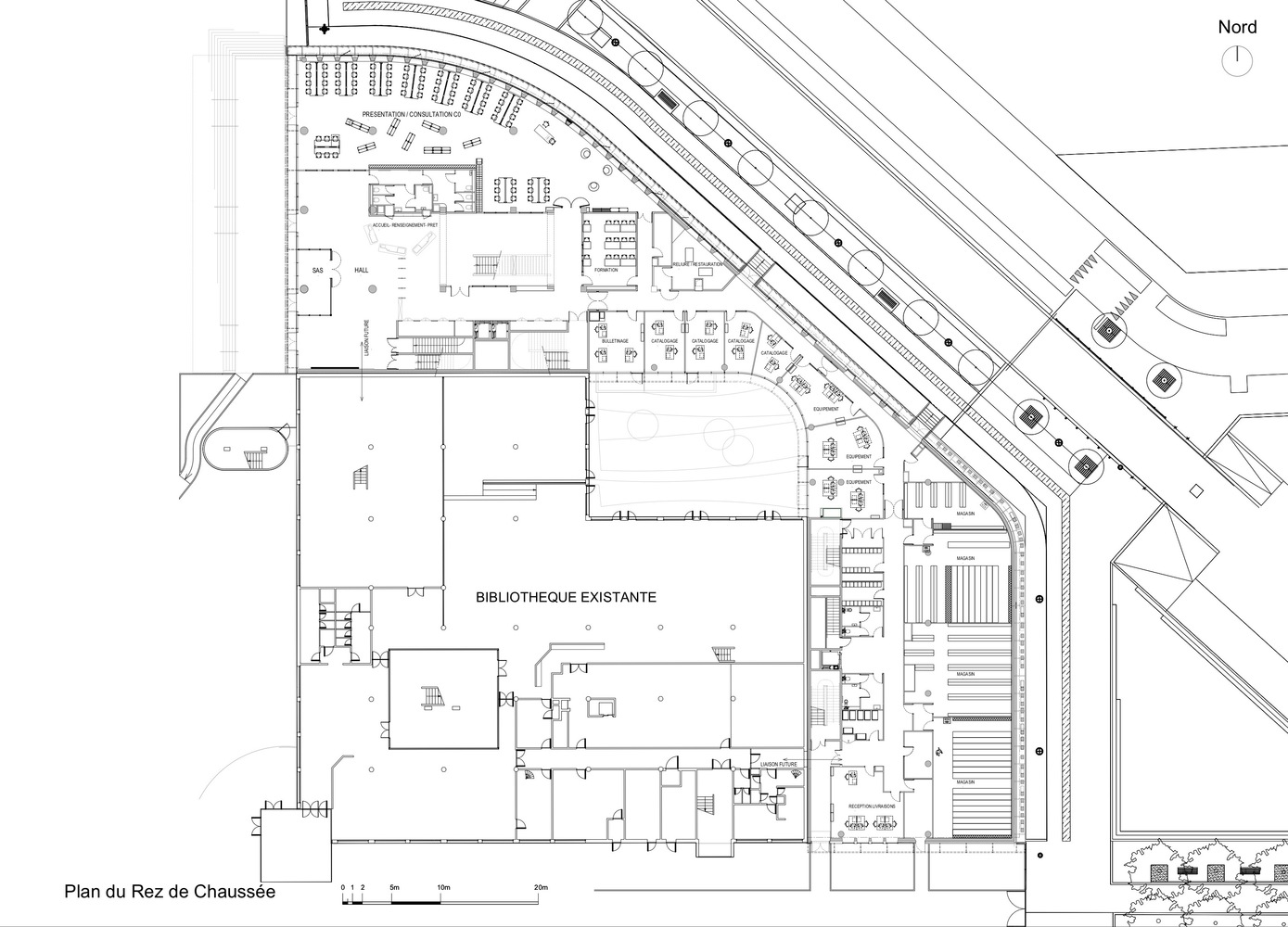
1001_BUVIL_plans_nettoyés_10 21:56 04 May in by MODERNi 0 Comments 0 Likes FacebookTwitterGoogle+Pinterest